Rénovation d’un appartement

LIEU
Aytré (17)

TYPE DE PROJET
Rénovation intérieur

CLIENT
Privé / Maison principale

PRESTATIONS DE SERVICE

MOTS CLÉS

Projet de rénovation intérieure d’un appartement situé à Aytré,

réalisé à la suite de son acquisition par la cliente, avec l’objectif de repenser les espaces avant son emménagement.

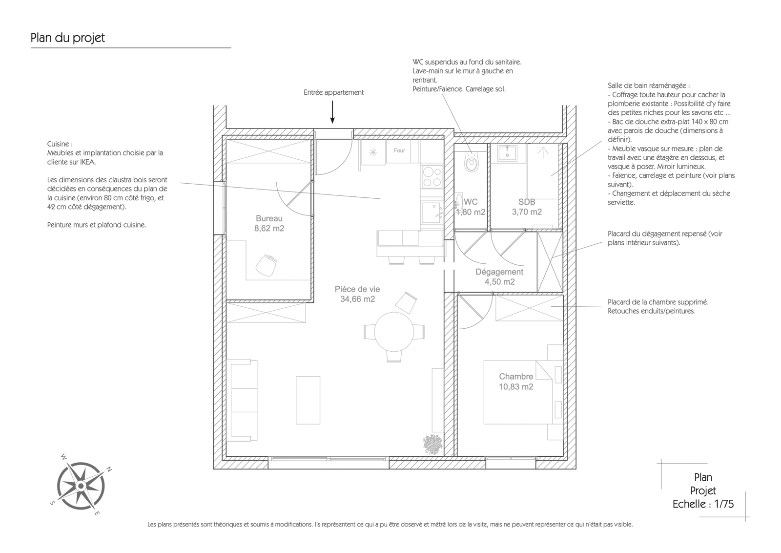
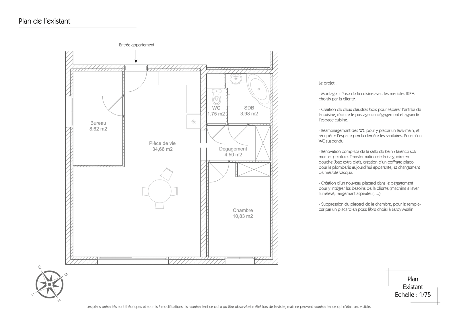
Notre mission a porté sur la rénovation complète de la cuisine, de la salle de bain, des WC, ainsi que de la chambre principale. Chaque pièce a été retravaillée afin d’optimiser les volumes existants, d’améliorer la fonctionnalité au quotidien et de créer une atmosphère cohérente à l’échelle de l’appartement.

Les attentes de la cliente étaient claires : concevoir un intérieur à la fois fonctionnel et épuré, tout en conservant une identité forte, singulière et chaleureuse. Une attention particulière a donc été portée aux choix des matériaux, aux lignes du mobilier et aux détails de conception, afin de créer des espaces sobres mais personnalisés.

L’ensemble des aménagements sur mesure a été dessiné dans le but de proposer un projet qui reflète pleinement la personnalité et le mode de vie de la cliente, pour un intérieur à la fois pratique, harmonieux et accueillant.

Photos avant le chantier

Plans avant / après

Photos des travaux

Avant / Après

Les photos en fin de chantier

Projets similaires

Conception d’un bureau d’accueil

Projet de conception d’un bureau d’accueil sur mesure pour les secrétaires d’un cabinet d’orthodontie situé en centre-ville de La Rochelle.

Le cabinet souhaitait repenser son espace d’accueil afin qu’il soit à la fois esthétique, fonctionnel et accueillant, en cohérence avec l’entrée et la salle d’attente récemment rénovées. L’objectif était de créer un mobilier sobre et élégant …

Lire la suite >

Extension et rénovation d’une maison

Projet comprenant la rénovation du rez-de-chaussé d’une maison et d’une chambre à l’étage, ainsi que l’extension de la pièce de vie, et la transformation complète du jardin de la maison. Ce projet a vu le jour par l’envie de la cliente d’avoir une pièce de vie plus grande …

Lire la suite >